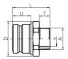
Stecknippel
mit Außengewindeanschluß NPT (kegeliges Rohrgewinde )


Artikel-Nr.

A

a

U

L

D

T

SW

   
101A.ANP2---50-1-

NPT 2"

40

46

93

92

26

85

   
                   
                   
= Werkstoff: 71=1.4571, 04=1.4404, 01=1.4301, 39=1.4539,
BR=Stahl brüniert, VN=Stahl vernickelt, VZ=Stahl verzinkt
MC=Messing verchromt, MN=Messing vernickelt, MP=Messing passiviert
AB=Alu. blau, AR=Alu. rot, AS=Alu. silber
Anschluß ANSI B 1.20.1